Description

140 m²
5872 m²
5 pièces
3 chambres
1 garage
1 sdb

Maison lumineuse et parfaitement entretenue, d'une superficie de 140m².

Terrain de 5872m² constructible et arboré.

Cette maison vous accueil avec sa pièce de vie de 51m², lumineuse avec sa cheminée fermée qui apporte la chaleur d'antan.
Vous trouverez aussi une cuisine meublée et équipée, moderne, pour faire de bon petit plats.
Le couloir dessert 3 chambres de 10m², ainsi qu'une salle de bain.
Ce bien vous apporte aussi un garage de 40m² et un abri de jardin de 40m²!

Assainissement aux normes
Forage en plus du réseau.
Vide sanitaire sous toute la maison.

Située à 5mn de Matha et 15mn de Cognac, cette maison est prête à vous accueillir, juste poser vos valises
Je vous invite à la visiter, vous comprendrez!
N'hésitez pas à me contacter pour plus de renseignement.

Les informations sur les risques auxquels ce bien est exposé sont disponibles sur le site Géorisques : www.georisques.gouv.fr

Caractéristiques

Honoraires charge
mandant
Type
maison
État général
très bon
Environnement
village
Orientation
Sud
Disponibilité
à l'acte
Construction
1984
Surface totale
175 m²
Surface terrain
5872 m²
Surface habitable
140 m²
Nb. chambres
3
Nb. salles de bains
1
Nb. cuisines
1
Nb. garages
1
Chauffages
électricité
Terrasse
Cheminée
Fosse septique (ANC)
Taxe foncière
900,00 €

Télécharger le barème des honoraires

Localisation Louzignac, 17160

Pour des raisons de confidentialité, la géolocalisation de ce bien a été dégradée.

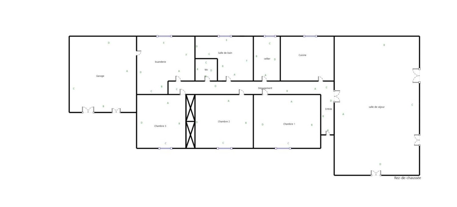
Plans

Détail des pièces

Entrée 4 m²
Séjour 51 m²
Cuisine 12 m²
Cellier 4 m²
Couloir 10 m²
Chambre 10 m²
Chambre 10 m²
Chambre 9,7 m²
Salle de bains 7 m²
Toilettes 1,5 m²
Buanderie 15 m²
Garage 40 m²

Abri de jardin 40 m²

Terrain 5900 m²

Performance énergétique

logement extrêmement performant
bâtiment performantpassoire énergétique
  • A< 70
  • B70 - 110
  • C110 - 180179kWh/m².an5 *kg CO2/m².an
  • D180 - 250
  • E250 - 330
  • F330 - 420
  • G> 420
logement extrêmement peu performant

* Dont émissions de gaz à effet de serre

peu d'émissions de CO2
  • A< 65kg CO2/m².an
  • B6 - 11
  • C11 - 30
  • D30 - 50
  • E50 - 70
  • F70 - 100
  • G> 100
émissions de CO2 très importantes

Estimation des dépenses annuelles d'énergie pour un usage standard

entre 1 693 € et 1 920 € / an *

* Prix moyens des énergies indexés pour l'année 2021 (abonnement compris).

Simulation de prêt

(10% du prix du bien)
%
(taux moyen hors assurance)

Montant estimé

1287 € / mois *

* Calculs effectués sur la base d'un prêt à taux fixe de 3,39% sur une durée de 25 ans avec un apport de 10% et hors assurance. Le coût de l'assurance de prêt dépend du capital assuré, de votre âge, de la durée du prêt, du taux d'intérêt du prêt, de votre questionnaire de santé et/ou médical, et de votre profession. Les calculs et solutions indiqués ne revêtent aucun caractère contractuel et ne sont en aucun cas une offre de prêt. Seuls les banques et organismes de financement sont habilités à accorder un financement. Pour tout crédit immobilier, vous êtes protégés par un délai de réflexion de 10 jours. Aucun versement de quelque nature que ce soit ne peut être exigé d'un particulier avant l'obtention d'un ou de plusieurs prêts d'argent. L'achat est subordonné à l'obtention du prêt. S'il n'est pas obtenu, le vendeur doit rembourser les sommes versées. Un crédit vous engage et doit être remboursé. Vérifiez vos capacités de remboursement avant de vous engager.

Cette annonce vous intéresse ?

Prenez contact avec Lisette Blanchet (EI)

Lisette Blanchet

Agent commercial en immobilier immatriculé au RSAC de SAINTES sous le n°912982477


ou

Filtres SVG
Logo LMDimmobilier Logo LMDimmobilier LMDimmobilier

En poursuivant votre navigation sur ce site, vous acceptez l'utilisation de Cookies pour mesurer l'audience de notre site.

En savoir plus