Description

204 m²
1543 m²
8 pièces
5 chambres
2 garages
1 sdb

À seulement quelques minutes du centre et des plages de Saint-Brévin-l’Océan, dans un quartier résidentiel recherché et baigné de lumière, cette maison familiale de caractère offre un emplacement rare, à la fois paisible et proche de tout.

Implantée sur une belle parcelle arborée de 1 543 m², la maison développe plus de 200 m² habitables : un vaste séjour double avec cheminée, une véranda plein sud, six chambres, un bureau, ainsi que deux garages et une cave.
De beaux volumes, une construction solide et une organisation propice à la vie de famille.

Cette propriété se prête idéalement à un projet de rénovation élégante, permettant de lui redonner une allure plus contemporaine tout en préservant son authenticité et son âme.
Les volumes, la luminosité et l’environnement en font une base rare pour une résidence principale ou secondaire à forte valeur patrimoniale.

Un lieu unique, une adresse convoitée, un cadre de vie privilégié.
L’emplacement le mérite. La maison aussi.

Valérie Aubron(EI) La Côte de Jade, en exclusivité de confiance, à votre disposition pour vous accompagner, vous renseigner, pour organiser une visite.

Je vous invite à me contacter afin d'échanger ensemble autour de votre projet.

Les honoraires sont à la charge vendeur.

Les superficies sont indiquées à titre informatif et non contractuel. Nous pouvons vous proposer gratuitement un avis de valeur et une véritable étude de votre bien immobilier. Les informations Géorisques sont disponibles sur : www.georisques.gouv.fr. Contactez Valérie Aubron au +33630351619

Les informations sur les risques auxquels ce bien est exposé sont disponibles sur le site Géorisques : www.georisques.gouv.fr

Caractéristiques

Honoraires charge
mandant
Type
villa
État général
à rénover
Environnement
plage
Orientation
Sud
Disponibilité
immédiate
Construction
1970
Surface totale
306 m²
Surface terrain
1543 m²
Surface habitable
204 m²
Nb. chambres
5
Nb. salles de bains
1
Nb. salles d'eau
1
Nb. garages
2
Nb. parking
4
Nb. balcons
1
Types de cuisine
équipée et aménagée
Chauffages
gaz
Parking privé
Sous-sol
Cave
Terrasse
Cheminée
Tout à l'égout
Taxe foncière
2 300,00 €

Télécharger le barème des honoraires

Localisation Saint-Brevin-Les-Pins, 44250

Pour des raisons de confidentialité, la géolocalisation de ce bien a été dégradée.

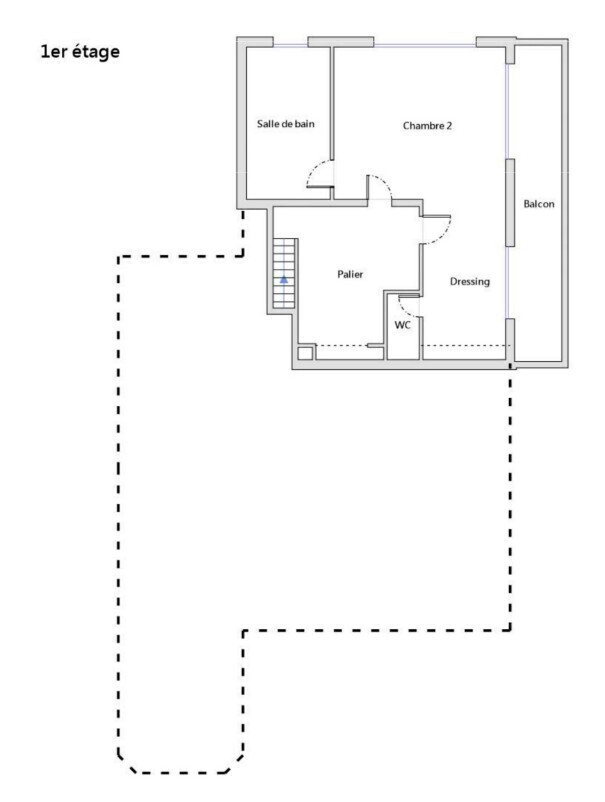
Détail des pièces

Cave en sous-sol 27 m²

Grande pièce de vie 45 m²
Chambre N°1 11 m²
Dégagement couloir 10 m²
Cuisine 16 m²
WC 0,77 m²
Pièce point eau 4,3 m²
Véranda 14 m²
Garage N°1 29 m²
Garage N°2 28 m²

Grand pallier 13 m²
Chambre N°2 19 m²
Bains & douches 12 m²
WC 1,6 m²
Espace dressing 13 m²
Pallier 6,4 m²
Chambre/Bureau N°3 7,9 m²
Chambre N°4 13 m²
Chambre N°5 9,8 m²
Chambre N°6 13 m²
WC 1,1 m²
Salle de bain 6,1 m²
Balcon 14 m²

Grenier 7,4 m²

Performance énergétique

logement extrêmement performant
bâtiment performantpassoire énergétique
  • A< 70
  • B70 - 110
  • C110 - 180
  • D180 - 250
  • E250 - 330259kWh/m².an57 *kg CO2/m².an
  • F330 - 420
  • G> 420
logement extrêmement peu performant

* Dont émissions de gaz à effet de serre

peu d'émissions de CO2
  • A< 6
  • B6 - 11
  • C11 - 30
  • D30 - 50
  • E50 - 7057kg CO2/m².an
  • F70 - 100
  • G> 100
émissions de CO2 très importantes

Estimation des dépenses annuelles d'énergie pour un usage standard

entre 3 220 € et 4 410 € / an *

* Prix moyens des énergies indexés pour l'année 2021 (abonnement compris).

Simulation de prêt

(10% du prix du bien)
%
(taux moyen hors assurance)

Montant estimé

3095 € / mois *

* Calculs effectués sur la base d'un prêt à taux fixe de 3,39% sur une durée de 25 ans avec un apport de 10% et hors assurance. Le coût de l'assurance de prêt dépend du capital assuré, de votre âge, de la durée du prêt, du taux d'intérêt du prêt, de votre questionnaire de santé et/ou médical, et de votre profession. Les calculs et solutions indiqués ne revêtent aucun caractère contractuel et ne sont en aucun cas une offre de prêt. Seuls les banques et organismes de financement sont habilités à accorder un financement. Pour tout crédit immobilier, vous êtes protégés par un délai de réflexion de 10 jours. Aucun versement de quelque nature que ce soit ne peut être exigé d'un particulier avant l'obtention d'un ou de plusieurs prêts d'argent. L'achat est subordonné à l'obtention du prêt. S'il n'est pas obtenu, le vendeur doit rembourser les sommes versées. Un crédit vous engage et doit être remboursé. Vérifiez vos capacités de remboursement avant de vous engager.

Cette annonce vous intéresse ?

Prenez contact avec Valérie Aubron (EI)

Valérie Aubron

Agent commercial en immobilier immatriculé au RSAC de Saint Nazaire sous le n°888696515


ou

Filtres SVG
Logo LMDimmobilier Logo LMDimmobilier LMDimmobilier

En poursuivant votre navigation sur ce site, vous acceptez l'utilisation de Cookies pour mesurer l'audience de notre site.

En savoir plus