Description

117 m²
6 pièces
4 chambres

Baisse de prix exceptionnelle sur cette superbe maison habitable immédiatement!

À vendre à Sorgues, en France, cette charmante maison de 117 m² offre un cadre de vie idéal pour une famille. Avec ses 6 pièces spacieuses, elle saura vous séduire par son agencement fonctionnel et son atmosphère chaleureuse. La cuisine aménagée est un véritable atout pour les amateurs de gastronomie, offrant un espace convivial pour préparer de délicieux repas en famille ou entre amis.

Le chauffage électrique assure un confort optimal tout au long de l'année, tandis que la surface habitable généreuse permet d'aménager les espaces selon vos besoins et vos envies. Idéalement située, cette maison offre un accès facile aux commodités de la ville tout en préservant un environnement calme et paisible.

Ne manquez pas l'opportunité de devenir propriétaire de ce bien d'exception à Sorgues. Contactez-nous dès maintenant pour organiser une visite et découvrir tous les avantages qu'offre cette maison.

Les informations sur les risques auxquels ce bien est exposé sont disponibles sur le site Géorisques : www.georisques.gouv.fr

Caractéristiques

Honoraires charge
mandant
Type
maison
État général
bon
Environnement
lotissement
Disponibilité
à l'acte
Construction
1948
Rénovation
2024
Surface habitable
117 m²
Nb. chambres
4
Nb. salles d'eau
1
Nb. cuisines
1
Nb. parking
2
Types de cuisine
aménagée
Chauffages
électricité
Terrasse
Taxe foncière
798,00 €

Télécharger le barème des honoraires

Localisation Sorgues, 84700

Pour des raisons de confidentialité, la géolocalisation de ce bien a été dégradée.

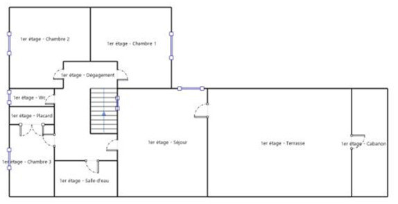
Détail des pièces

CUISINE 14 m²

CHAMBRE 18 m²
CHAMBRE 12 m²
CHAMBRE 11 m²
CHAMBRE 11 m²
SEJOUR 18 m²

Performance énergétique

logement extrêmement performant
bâtiment performantpassoire énergétique
  • A< 70
  • B70 - 11090kWh/m².an3 *kg CO2/m².an
  • C110 - 180
  • D180 - 250
  • E250 - 330
  • F330 - 420
  • G> 420
logement extrêmement peu performant

* Dont émissions de gaz à effet de serre

peu d'émissions de CO2
  • A< 63kg CO2/m².an
  • B6 - 11
  • C11 - 30
  • D30 - 50
  • E50 - 70
  • F70 - 100
  • G> 100
émissions de CO2 très importantes

Estimation des dépenses annuelles d'énergie pour un usage standard

entre 850 € et 1 200 € / an *

* Prix moyens des énergies indexés pour l'année 2023 (abonnement compris).

Simulation de prêt

(10% du prix du bien)
%
(taux moyen hors assurance)

Montant estimé

848 € / mois *

* Calculs effectués sur la base d'un prêt à taux fixe de 3,32% sur une durée de 25 ans avec un apport de 10% et hors assurance. Le coût de l'assurance de prêt dépend du capital assuré, de votre âge, de la durée du prêt, du taux d'intérêt du prêt, de votre questionnaire de santé et/ou médical, et de votre profession. Les calculs et solutions indiqués ne revêtent aucun caractère contractuel et ne sont en aucun cas une offre de prêt. Seuls les banques et organismes de financement sont habilités à accorder un financement. Pour tout crédit immobilier, vous êtes protégés par un délai de réflexion de 10 jours. Aucun versement de quelque nature que ce soit ne peut être exigé d'un particulier avant l'obtention d'un ou de plusieurs prêts d'argent. L'achat est subordonné à l'obtention du prêt. S'il n'est pas obtenu, le vendeur doit rembourser les sommes versées. Un crédit vous engage et doit être remboursé. Vérifiez vos capacités de remboursement avant de vous engager.

Cette annonce vous intéresse ?

Prenez contact avec Lmd Immobilier Sabah (EI)

Lmd Immobilier Sabah

Agent commercial en immobilier immatriculé au RSAC de Avignon sous le n°937695807


ou

Autres annonces à découvrir...

Filtres SVG
Logo LMDimmobilier Logo LMDimmobilier LMDimmobilier

En poursuivant votre navigation sur ce site, vous acceptez l'utilisation de Cookies pour mesurer l'audience de notre site.

En savoir plus