Description

114 m²
738 m²
5 pièces
4 chambres
1 garage

Entre romarins, lauriers et mimosas, cette maison T5 de 114m2 avec garage de 30m2 environ sur un terrain de 738m2 sans vis à vis saura vous séduire !

A quelques minutes de la mer, côte orientale, proche de Solenza et du Col de Bavella, cette maison surplombe le secteur et assure une vue formidable sur les collines et au loin la mer, le tout sans aucune nuisance.

Une grande pièce de vie de 42.60m2 avec cuisine équipée, le cellier, quatre chambres dont une avec salle d'eau, la salle d'eau et les wc séparés, de très beaux volumes et une maison dans un état d'entretien irréprochable.

Cette maison construite sur vide sanitaire dispose également d'un garage de 30m2 environ.

Terrain de 738m2, entièrement paysagé, la beauté de la Corse et de sa végétation.

Venez découvrir cette maison splendide.

Les informations sur les risques auxquels ce bien est exposé sont disponibles sur le site Géorisques : www.georisques.gouv.fr

Caractéristiques

Honoraires charge
mandant
Type
maison
État général
excellent
Environnement
clos privé
Orientation
Sud
Disponibilité
à l'acte
Surface terrain
738 m²
Surface habitable
114 m²
Nb. chambres
4
Nb. salles d'eau
1
Nb. cuisines
1
Nb. garages
1
Types de cuisine
équipée
Chauffages
pompe à chaleur air/air
Parking privé
Sous-sol
Cave
Tout à l'égout
Taxe foncière
1 100,00 €

Télécharger le barème des honoraires

Localisation Ventiseri, 20240

Pour des raisons de confidentialité, la géolocalisation de ce bien a été dégradée.

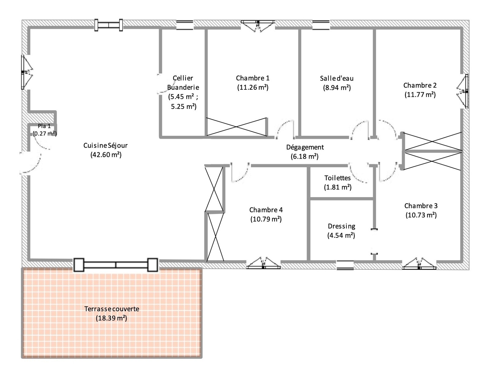
Détail des pièces

Garage 29 m²

Séjour cuisine 43 m²
Cellier 5,5 m²
Chambre 1 11 m²
Chambre 2 12 m²
Chambre 3 11 m²
Dressing chambre 3 4,5 m²
Chambre 4 11 m²
Salle d'eau 8,9 m²
WC séparé 1,8 m²

Performance énergétique

logement extrêmement performant
bâtiment performantpassoire énergétique
  • A< 70
  • B70 - 110100kWh/m².an3 *kg CO2/m².an
  • C110 - 180
  • D180 - 250
  • E250 - 330
  • F330 - 420
  • G> 420
logement extrêmement peu performant

* Dont émissions de gaz à effet de serre

peu d'émissions de CO2
  • A< 63kg CO2/m².an
  • B6 - 11
  • C11 - 30
  • D30 - 50
  • E50 - 70
  • F70 - 100
  • G> 100
émissions de CO2 très importantes

Estimation des dépenses annuelles d'énergie pour un usage standard

entre 920 € et 1 300 € / an *

* Prix moyens des énergies indexés pour l'année 2024 (abonnement compris).

Simulation de prêt

(10% du prix du bien)
%
(taux moyen hors assurance)

Montant estimé

2044 € / mois *

* Calculs effectués sur la base d'un prêt à taux fixe de 3,37% sur une durée de 25 ans avec un apport de 10% et hors assurance. Le coût de l'assurance de prêt dépend du capital assuré, de votre âge, de la durée du prêt, du taux d'intérêt du prêt, de votre questionnaire de santé et/ou médical, et de votre profession. Les calculs et solutions indiqués ne revêtent aucun caractère contractuel et ne sont en aucun cas une offre de prêt. Seuls les banques et organismes de financement sont habilités à accorder un financement. Pour tout crédit immobilier, vous êtes protégés par un délai de réflexion de 10 jours. Aucun versement de quelque nature que ce soit ne peut être exigé d'un particulier avant l'obtention d'un ou de plusieurs prêts d'argent. L'achat est subordonné à l'obtention du prêt. S'il n'est pas obtenu, le vendeur doit rembourser les sommes versées. Un crédit vous engage et doit être remboursé. Vérifiez vos capacités de remboursement avant de vous engager.

Cette annonce vous intéresse ?

Prenez contact avec Vincent Dujardin (EI)

Vincent Dujardin

Agent commercial en immobilier immatriculé au RSAC de Draguignan sous le n°841618804


ou

Autres annonces à découvrir...

Filtres SVG
Logo LMDimmobilier Logo LMDimmobilier LMDimmobilier

En poursuivant votre navigation sur ce site, vous acceptez l'utilisation de Cookies pour mesurer l'audience de notre site.

En savoir plus